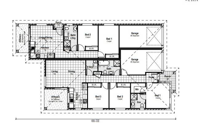
Dual Key 3+2 Bed New home in Warnervale
In this New Warnervale Estate, we have a limited number of dual key house and land packages. The property comprises of 3 bedroom 2 bath and 1 car garage, with the second dwelling consisting of 2bed, 1 bathroom and 1 car garage, a total Total 225.9m2 floor space
All site costs covered
Reconstituted stone benchtops
Security screen door
LED downlights throughout
Front feature door
Slimline water tank
LED ceiling light fans in all bedrooms
Ducted air conditioning
Soft-close kitchen drawers and cabinets
Fully fenced yard with driveway
Alfresco under main roof
For more information or to secure this lot, please contact Hannah Aria 0406 217 777.
